MARIST CATHOLIC HIGH SCHOOL SCIENCE WING

PROJECT TYPE
High School

CONSTRUCTION TYPE
Addition & Renovation

PROJECT DELIVERY
CM/GC

SIZE
Additions: 9,520 SF
Renovations: 6,190 SF

MARIST CATHOLIC HIGH SCHOOL
Eugene, Oregon

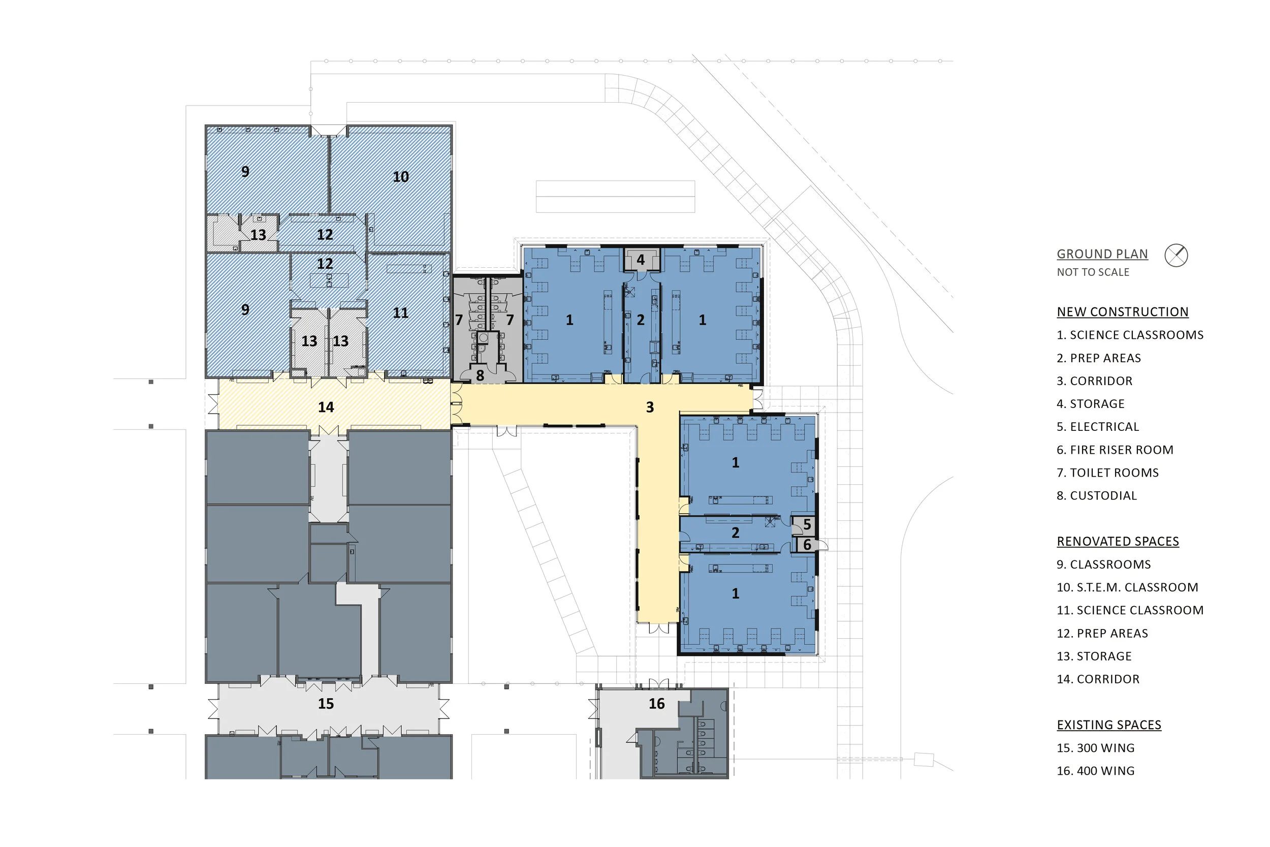
Through an RFP process, GLAS received the opportunity to begin developing and implementing the multi-phase improvements identified in a previously-completed master plan.  Construction of the first phases have been completed, and future phases of the project will be implemented as funding is obtained.

Phase 1 included a new science wing, which the school desperately needed to replace their original science classrooms built in the late 1960s.  This phase included four new, state-of-the-art classrooms and two prep areas, allowing the science program to move out of their existing classrooms which we then remodeled into a fifth science classroom, a STEM classroom, and two general education classrooms during Phase 2.

It was imperative to Marist that the building itself embody an appropriate amount of spirituality.  The spaces needed to be educational in nature but also meaningful to the students and staff beyond what you would see in a secular high school.  Traditional Catholic architectural elements were used in the science wing such as ashlar stone and colored glazing.  Such elements bring a sense of gravity to the procession through the space in addition to symbolically representing the liturgical calendar with the colors used.

back to K-12 EDUCATION